千歳市本庁舎耐震改修及び第2庁舎建設について
ページ番号1005591 更新日 2019年8月1日
市役所本庁舎耐震等改修工事と市民庭園整備工事の着手について(令和元年8月)
今年の8月から市役所本庁舎の耐震改修等工事及び市民庭園整備工事を行います。
工事期間中は、工事用作業スペースを確保するため、駐車場の一部に仮囲いを設置すると共に、駐車場内を工事車両が通行することとなり、来庁者のかたにご迷惑をおかけすることがあると思われます。
駐車場内を大型車両が通行する際は、交通誘導員を配置し、来庁者や一般車両の安全確保に努めてまいります。
また、耐震改修等工事を行うにあたっては、本庁舎を閉庁せず、通常業務を行いながらの平日作業となりますので、窓口相談や事務手続きなどの際に、耐震補強や撤去作業に伴う躯体コンクリートのはつりや、ドリル穿孔の騒音等が発生することとなり、来庁者のかたにご迷惑をおかけいたしますが、ご理解とご協力をお願いいたします。
1.工事概要
- 1)市役所本庁舎耐震等改修工事
- 改修内容 : 本庁舎の耐震改修工事及び大規模改修工事
- 予定工期 : 令和元年8月上旬から令和2年3月下旬
- 2)市役所市民庭園整備工事
- 整備内容 : 植樹、芝張、インターロッキング敷設、ベンチ及び外灯の設置 他
- 予定工期 : 令和元年8月下旬から令和元年12月中旬
2.工事中の仮設計画

第2庁舎の供用開始について(平成31年2月12日)
本日2月12日をもちまして、第2庁舎の供用を開始しました。
庁舎内はLEDを使った明るい庁舎になっており、多くの市民の皆さまが利用する住民票や戸籍届などの窓口、国民健康保険窓口、子どもや高齢者、障がいのあるかたのための相談窓口など生活に身近な部署を中心に1階に集約しました。
2階には、市民生活課や福祉課が入り相談を受け付けします。また、教育委員会も移転しました。
供用開始した当日は、第2庁舎エントランスでセレモニーを実施しました。
第2庁舎建設工事について(内装工事・外構工事 平成30年11月)
建物周囲に張られていた仮設シートや、駐車場に設置されていた工事用仮囲いが撤去され、いよいよ建物の全容が明らかになってきました。
現在は、建物内で内装工事や設備機器の試運転等を進めており、駐車場ではアスファルト舗装や区画線引き等の工事を行なっております。
12月の完成まで、あともう少しです。
第2庁舎建設工事について(機械設備・電気設備工事 平成30年9月)
9月6日の深夜、北海道胆振東部地震が発生し、千歳市では震度5強から6弱の揺れが観測され、市内全域が停電となりました。
この地震による第2庁舎へのひび割れや損傷等の被害はありませんでした。
現在は、屋上防水工事が完了し、外壁タイル工事も建物正面側を残し、ほぼ完了しており、
屋上には太陽光発電パネル、非常用発電機、エアコン室外機が設置されております。
第2庁舎建設工事について(外壁・屋上防水工事 平成30年7月)
6月下旬までに風除室、ポーチ部分を残し、第2庁舎の躯体工事がほぼ完了しています。
現在は、建物周囲を覆う仮設シートの中では、外壁タイルの張付け作業が着々と進んでおり、屋上では防水工事の準備を行なっております。
12月の完成に向けて、順調に工事が進んでおります。
第2庁舎建設工事について(コンクリート工事 平成30年4月)
平成30年度末の第2庁舎開庁に向けて現在工事を進めていますが、今年の冬は例年に比べ降雪量が少なく工事も順調に進んでおり、基礎部分と1階床部分の躯体工事を完了しています。
現在は、1階部分の柱と壁などの鉄筋・型枠・コンクリート工事を行なっています。
大型車両の往来などでご迷惑をおかけしていますが、皆様のご理解とご協力をお願いいたします。
第2庁舎建設工事について(杭打ち工事 平成29年11月)
平成30年度末の第2庁舎開庁に向けて、10月から建設工事に着工しています。
現在は杭打工事と呼ばれる建物の基礎作りを行なっています。固い支持地盤まで穴を掘って既成コンクリート杭を埋設し、それを支えに基礎を作ることにより、安全で強固な建物を建てることができます。
また、工事期間中は、市役所駐車場の減少が予想されます。大変ご迷惑をおかけしますが、市役所や総合福祉センターをご利用の際は、できるだけ公共交通機関をご利用いただくなど、皆様のご理解とご協力をお願いいたします。
なお、第2庁舎建設工事の期間は、平成30年12月までを予定しています。
11月17日金曜日撮影
第2庁舎建設工事の着工について(平成29年10月)
平成30年度末の第2庁舎開庁に向けて、平成29年10月から下記のとおり第2庁舎建設工事を行います。
工事期間中は、工事用作業スペースを確保するため、駐車場の一部に仮囲いを設置すると共に、駐車場内を工事車両が通行することとなり、来庁者のかたにご迷惑をおかけすることがあると思われます。
駐車場内を大型車両が通行する際は、交通誘導員を配置し、来庁者の安全確保に努めてまいりますので、皆様のご協力をお願いいたします。
1.工事概要
- 1)工 事 名 : 千歳市第2庁舎建設工事
- 2)建 設 地 : 千歳市東雲町2丁目34番1、36番の各内、37番(市役所旧中庭)
- 3)構造規模 : 鉄筋コンクリート造2階建
- 4)建築面積 : 2,522.75平方メートル
- 5)延床面積 : 4,818.60平方メートル
- 6)工 期 : 平成29年10月2日から平成30年12月14日
- 7)請負業者 :
- 【建築工事】岩倉・中山・千歳建設 特定共同企業体
- 【機械設備工事】新栄・髙橋 特定共同企業体
- 【電気設備工事】伸盛・北東・やまでん 特定共同企業体
2.工事中の仮設計画図
第2庁舎建設工事に伴う準備工事の着工について
平成29年10月の第2庁舎建設工事の着工に向けて、建設地となる市民庭園内の準備工事を行います。
工事期間中は、市民庭園外周部に工事用仮囲いを設置することから、市民庭園が利用できなくなります。
また、駐車場内を工事車両が通行することとなり、来庁者のかたにご迷惑をおかけすることがあると思われます。
駐車場内を大型車両が通行する際には、交通誘導員を配置し、来庁者の安全確保に努めてまいりますので、皆さまのご協力をお願いいたします。
- 平成29年5月中旬から7月中旬の工事
- 樹木の伐採、抜根
- 芝生、敷石、アスファルト舗装、屋外遊具等の撤去
- 市民の像等の移設
- 平成29年7月中旬から9月下旬までの工事
- 下水道本管の移設工事
- 電線管の移設工事
第2庁舎建設実施設計(平成29年3月)
(第2庁舎外観イメージパース)
本庁舎の狭隘化や教育委員会庁舎の老朽化が進行しているほか、行政機能が西庁舎などに分散化されていることから、これらの課題を解決するため第2庁舎の建設を進めています。平成31年3月頃の供用開始に向けて平成28年度に実施設計を策定しました。
(建設位置図)
第2庁舎の建設位置については、様々な観点から検討を重ねてきた経過があります。第2庁舎を本庁舎の西口駐車場側に建設した場合、駐車場のスペースが減少することに加え、工事期間(平成29年から30年)の2か年は約130台分の車が建設工事に必要なエリアとして活用できない状況が想定され、新たな駐車場の確保や市民サービスを低下させない手法を必要とします。
第2庁舎を市民庭園側に建設した場合は、駐車場を現状のまま使用でき、さらに建設工事に必要な工事エリアは車約40台分まで減少することが可能になり、また、市民ホール棟などとの接続により、本庁舎と第2庁舎が回廊式となり市民ホールを有効に活用することが可能となります。
このような検討を重ねた結果、大半が自家用車による来庁が多い現状を考慮し、駐車場側よりも市民庭園側に建設することが多くの市民の利便性を損なわずに庁舎機能を発揮できると判断し計画を進めています。
(断面図)
第2庁舎の1階床高さはバリフリーに配慮し、駐車場から段差なく第2庁舎に入ることができるようにします。なお、千歳市洪水ハザードマップにおける浸水を考慮し、現状地盤より50センチ上げることとします。
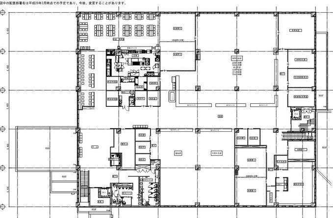
(1階平面図)
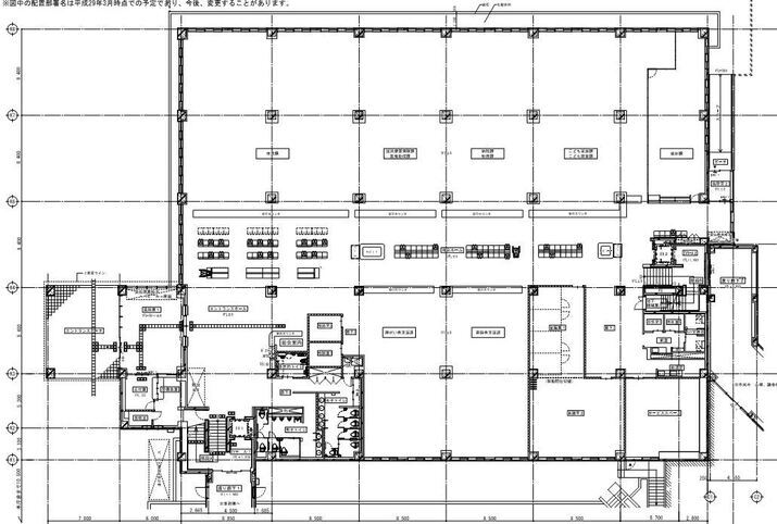
(2階平面図)
シンプルな平面計画とし、市民にわかりやすいように執務スペースを配置します。第2庁舎には、市民が多く利用する窓口を配置し市民の移動が少なくなるように配慮しています。第2庁舎の2階には市民の憩いの場として食堂喫茶スペースを設けます。
今後は、本実施設計を基にして平成29年度から平成30年度にかけて本工事を実施し、平成31年3月頃の第2庁舎供用開始をめざします。
実施設計の概要は次の書類をご覧ください。
第2庁舎建設・本庁舎耐震等改修基本設計(平成28年3月)
(第2庁舎正面外観イメージ)
(食堂・喫茶イメージ)
(待ち合いスペースイメージ)
基本設計(素案)についてパブリックコメントを実施
基本設計(素案)について、平成28年2月からパブリックコメントを1か月間実施し市民の皆さんのご意見をうかがうほか、障がい者福祉団体のヒアリングや広報広聴モニター会議の意見交換などを経て、主に次の事項に関して修正を行いました。
- 本庁舎と第2庁舎の床高さについて、今後の高齢社会を見据えるとともに、子育て世代や障がいを有するかたなど誰もが庁舎を利用するに当たり、駐車場から段差なく第2庁舎に入ることができるようにする。
- 市民が利用する窓口やカウンターは、多様なケースに対応するため、直接、相談の様子が待ち合いから見えないよう、レイアウトを工夫することや相談室を設けるなどプライバシーの確保に十分配慮する。
基本設計の策定へ
上記のとおり素案について修正を行なったうえで、平成28年3月に基本設計を策定しました。設計書の項目は次のとおりです。
Ⅰ.基本設計方針
千歳市本庁舎耐震改修及び第2庁舎建設基本構想に示された基本理念に基づき、市民が親しみ利用しやすい庁舎をめざし、5項目の基本的な考え方を示しています。
Ⅱ.計画概要
第2庁舎の面積は4,543.78[機種依存文字](渡り廊下を除く)とし、地上2階建て鉄筋コンクリート造を計画しています。
Ⅲ.配置計画
第2庁舎の建設位置は、駐車場の確保の観点から市民庭園へ建設する予定です。また、既存の本庁舎(事務棟・市民ホール棟・議会棟)と渡り廊下で接続し、市民の利便性向上を図ります。
Ⅳ.平面計画
シンプルで市民に分かりやすい執務スペースを配置します。第2庁舎はゆとりのある中廊下式とし、市民課や高齢者支援課など市民が多く利用する窓口を配置するレイアウト計画としています。
Ⅴ.立面計画
汚れにくい外装材を選定してメンテナンスコストの抑制を図るとともに、遮音性能が高い建具を採用し、防音対策に努めます。
Ⅵ.断面計画
第2庁舎の1階床レベルはバリアフリーに配慮し、駐車場から段差なく第2庁舎に入ることが出来るようにします。
Ⅶ.構造計画
本庁舎の耐震化として、鉄骨ブレースや耐震壁をバランスよく設置し、効果的な補強を行います。
Ⅷ.電気設備計画
非常用発電設備や太陽光発電設備を設置するほか、電灯設備の光源はLEDとし、人感センサー等を活用することにより省エネルギー化を図ります。
Ⅸ.機械設備計画
防衛施設周辺防音工事標準仕方書の基準に準拠し、イニシャルコストやランニングコストを考慮した設備を採用します。
Ⅹ.事業計画
第2庁舎
平成28年度は第2庁舎建設の実施設計を行います。平成29、30年度に第2庁舎建設工事を行い、平成31年度はじめから第2庁舎を開庁する予定です。
本庁舎
平成30年度に本庁舎の耐震改修実施設計を行い、平成31年度に耐震改修工事を行います。平成31年度末の全庁舎開庁をめざします。
Ⅺ.概算工事費
【第2庁舎】2,340,019千円(事務費を除く)
【本庁舎】508,101千円(事務費を除く)
「第2庁舎建設・本庁舎耐震等改修基本設計書-概要版-】は次の書類でご覧になれます。
第2庁舎建設・本庁舎耐震等改修基本設計(素案)(平成28年2月)
(概観イメージ)
基本構想から基本設計(素案)へ
現在の本庁舎は、昭和51年の供用開始から39年を経過し、庁舎建設当時、約6万人であった人口も現在は9万5千人を超えており、狭あいな状況となっています。
その影響として、教育委員会庁舎や西庁舎等に行政機能が分散化することになり、市民相談や手続きが煩雑な配置となっています。
また、教育委員会庁舎は、昭和37年の建築から50年以上を経過し、建物全体の老朽化が著しく、雨漏りなどが発生しており、外壁改修や屋根防水全面改修など課題が多くあります。
さらに、本庁舎は、地震等の災害時において、災害対策本部を設置する施設となっていますが、平成23年度に実施した耐震診断の結果、強度不足により耐震性能を満たしておらず、補強工事が必要であると判定されており、安全性の面において課題が残ります。
こうした課題を解消するため、本庁舎に隣接して第2庁舎を建設し、第2庁舎建設後、本庁舎耐震等改修工事を実施します。
平成27年度は、平成27年9月に基本構想を策定し、平成28年3月までに第2庁舎建設・本庁舎耐震等改修基本設計を策定しますが、このたび次の基本設計方針のもと素案をまとめました。
基本設計(素案)の方針
第一に、市民の利用が多い窓口機能を第2庁舎に集約し、プライバシーに配慮した窓口を設置するなど、市民が利用しやすい、市民にやさしい庁舎を目指します。
第二に、ゆとりのある廊下や待合スペースを確保し、食堂・喫茶スペースを設けるなど、市民が安らぎ、交流できる庁舎を目指します。
第三に、災害対策の中枢となる機能を確保するため、本庁舎の耐震性能を補強するとともに、第2庁舎は非常時の電力供給など本庁舎の補完を図り、市民の安心・安全を守る防災拠点としての庁舎を目指します。
第四に、第2庁舎と本庁舎(事務棟・市民ホール棟・議会棟)を渡り廊下で接続し、市民サービスを機能的・効率的に提供できる庁舎を目指します。
第五に、第2庁舎には太陽光発電システム、LED照明の導入を計画し、省エネルギー化を図り環境に配慮した庁舎を目指します。
基本設計(素案)のパブリックコメントの実施について
市民参加手続きとして、「みんなで進める千歳のまちづくり条例」第8条に基づき、素案を公表し市民の皆さんから意見を聞くため、パブリックコメント(意見公募)を次のとおり実施します。
(1)公募期間
平成28年2月12日(金曜日)から平成28年3月11日(金曜日)
(2)素案の公表場所
ホームページのほか、市民ロビー(市役所1階)、市政情報コーナー(市役所2階)、総合福祉センター、北ガス文化ホール(市民文化センター)、図書館、公民館、市民活動交流センター(ミナクール)、各コミュニティセンター(11箇所…千歳コミセンは総合福祉センターと重複するため設置しない)、各支所(3支所)、千歳駅市民サービスセンター(合計22箇所)に設置
(3)意見の提出方法
素案の公表場所に設置する意見書(市指定用紙)に必要事項を記入の上、意見箱に投入するか、住所・氏名・連絡先を明記の上、郵送、FAX、Eメールで提出をお願いします(住所・氏名・連絡先が明記されていない場合は、意見としてお受けできませんのでご了承ください)。
(4)提出先
千歳市総務部総務課総務係
〒066-8686千歳市東雲町2丁目34番地千歳市役所総務課総務係宛
FAX番号:0123-22-8852
Eメール: somu@city.chitose.lg.jp
素案は次の書類をご覧ください。
※上記パブリックコメントは公募期間をもって終了いたしました。ご協力ありがとうございました。
本庁舎耐震改修及び第2庁舎建設基本構想(平成27年9月)
目的
庁舎耐震改修の必要性
昭和51年3月に竣工した市役所庁舎は多くの市民が利用する施設であるとともに、地震や大雨等の災害時において、災害対策本部を設置する施設にもなっていますが、平成23年度に実施した耐震診断の結果、事務棟及び市民ホール棟について、強度不足により補強工事が必要と判定されています。
また、耐震補強工事を実施するにあたり、事務スペースを確保できないという課題を抱えています。
※耐震補強工事を予定する市役所庁舎
※市民ホール
教育委員会庁舎の老朽化と庁舎機能の分散化を解消
教育委員会庁舎は昭和37年10月に市民会館として建築・供用開始し、平成元年4月から教育委員会庁舎として使用しています。建築から既に50年以上を経過しており、屋根防水やモルタル壁面の劣化が進み、雨漏りやモルタル片の落下などの発生のほか、内壁、柱、水道設備などの老朽化が著しく、応急的な修繕で対応している状況です。
さらに、教育委員会庁舎や建設部技術部門が入る西庁舎は本庁舎から離れて分散化しており、諸手続きが1つの庁舎で完結しないケースがあるなど市民の利便性低下の課題を抱えています。
※老朽化している教育委員会庁舎
※建設部が入っている西庁舎
基本構想の理念と検討課題
市民が利用しやすい、市民にやさしい庁舎
本庁舎建設から40年近く経過し、建設当時の人口6万人から9万5千人へ人口増加に伴って市民ニーズや行政サービスも多様化し、本庁舎1階の窓口や待合、執務スペースは狭あい化しています。
このことに伴い、市民が安心して相談できるプライバシーに配慮した相談スペースなどが不足しています。
※待合がない福祉・高齢者窓口
※執務スペースの影響を受ける窓口
市民がやすらぎ、交流できる庁舎
市役所には様々な機能がありますが、市民が来庁するときに「気軽に、快適に、やすらげる」空間が不足している状況です。
本庁舎には食堂と喫茶コーナーを設けていますが、場所がわかりにくいことや、市民ロビーについては、各種展示や確定申告会場、期日前投票所などにも活用していることから、市民が快適にやすらげるスペースが不足しています。
※地階市民にわかりにくい食堂や売店
※市民ホール棟2階市民にわかりにくい喫茶コーナー
市民の安心・安全を守る防災拠点としての庁舎
※平成26年9月の大雨災害時における本市の災害対策本部の様子
近年の異常気象などにより、本市においても昨年9月に発生した大雨など自然災害が発生する頻度が増加していることなどを踏まえ、災害発生時における市民の救助・復旧活動の円滑化や災害・安否情報の提供などを行うため、災害対応関係機関が一堂に会することのできる会議室の確保や防災資機材の集約など防災拠点機能の充実を図る必要があります。
これらのことを踏まえて、耐震改修工事に伴う事務スペース確保への対応、教育委員会庁舎の著しい老朽化への対応、教育委員会及び建設部技術部門の集約により市民サービスの利便性向上を図るため、第2庁舎を現在の本庁舎に隣接させて建設することとし、第2庁舎建設後、本庁舎の耐震改修等工事を実施することとしています。
※現在の市役所庁舎周辺状況
事業計画(スケジュール)
概算事業費
※機算事業費は、基本設計・実施設計前に想定する工事費であり、基本設計・実施設計における検討、資材・人件費の上昇などの要因により、事業費に変動が生じることがあります。
※第2庁舎等への移転費、第2庁舎備品購入費、教育委員会庁舎解体費等は含まれません。
これまでの検討経過
- 平成26年5月庁内に検討委員会を設置
- 平成26年5月庁内関係各課で検討を開始
- 平成27年4月庁内検討委員会で基本構想(素案)を決定
- 平成27年4月市議会総務文教委員会へ報告
- 平成27年6月から7月パブリックコメントを実施
- 平成27年6月広報広聴モニターから意見を聴取
- 平成27年9月基本構想を決定
基本構想(PDF版)
-
基本構想(一括用:表紙、目次、本文1ページから19ページ、裏表紙) (PDF 5.5 MB)
-
基本構想(分割用:表紙、目次、本文1ページから6ページ) (PDF 985.4 KB)
-
基本構想(分割用:本文7ページから12ページ) (PDF 1.2 MB)
-
基本構想(分割用:本文13ページから19ページ、裏表紙) (PDF 3.3 MB)
-
第2庁舎建設工事写真 (Jpeg 13.0 KB)
このページに関するお問い合わせ
総務部総務課
- 総務係:0123-24-0109(直通)
- 法制係:0123-24-0129(直通)
- 文書統計係:0123-24-0137(直通)
- 車両管理係:0123-24-0143(直通)